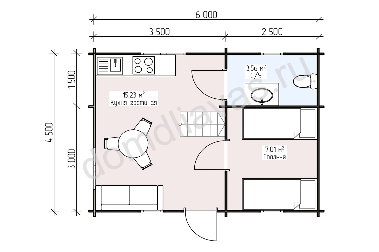
Характеристики
- Площадь строения 27 м2
- Этажей 2
- Внешние размеры 6,0х4,5 м
Варианты исполнения
мини-брус камерной сушки 135x45 мм
705 900 ₽
725 900 ₽
клееный брус 135x60 мм
1 035 700 ₽
1 055 700 ₽
клееный брус 135x80 мм
1 840 300 ₽
1 860 300 ₽
клееный брус 135х120 мм
2 540 300 ₽
2 560 300 ₽
Стоимость с учетом выбранных опций
705 900 ₽
725 900 ₽
-20 000 ₽















